Logo
Menu Close

About the
Project

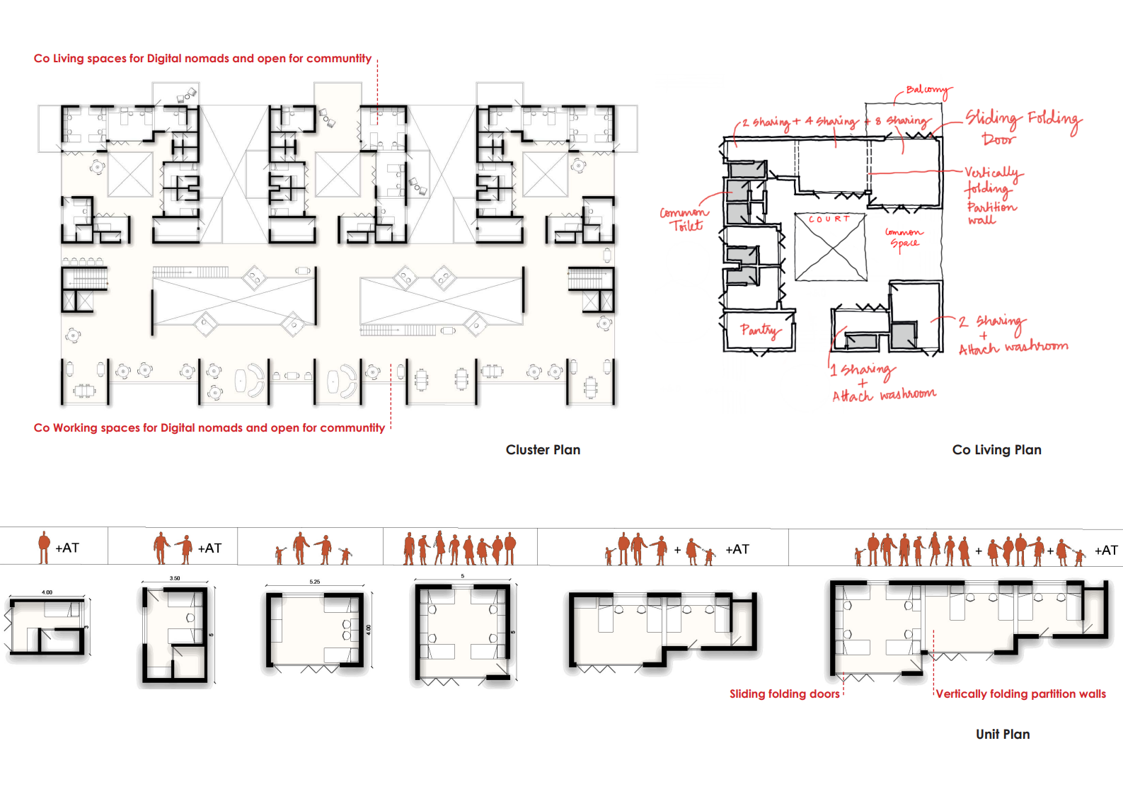
"Revitalising a Mill: The Innovative Co-Living Space for Digital Nomads"

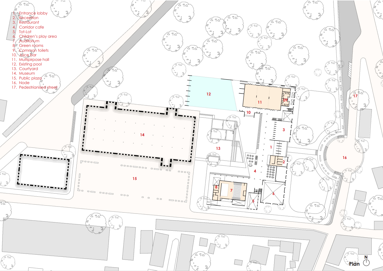
The city's lengthy industrial past plays a significant role in the tale of how Mumbai evolved to be the financial center of India. Mumbai historically served as a major industrial hub, thanks to a growth in the country's textile sector in the middle of the 19th century. One of the first modern businesses in the nation, the textile industry sparked expansion in several regions of the country. According to estimates, Mumbai had 130 mills, which by the 20th century were crucial to the city's economy. The sole relics of its mill culture and history are these mill remnants, some of which have been transformed into new structures and others of which are in ruins and covered in moss. With this is in mind, the design explores the transformation of a derelict Mumbai mill into an inclusive public space in addition to our proposal of the co living space which emphasizes sustainability and community involvement as a scalable paradigm for urban revitalization and as a way to build a comprehensive vision for rethinking urban places. The idea of having digital nomads as our user group strengthened the process as they are people who move around and immerse themselves in many cultures, which helped us connect them to Bombay's cultural and technological worlds. The design is focused on the flexibility and temporality amongst the spaces which are critically needed in a metropolis like Mumbai, as well as on our target audience.

  • Location
    Mumbai, India
  • Year
    2023
  • Category
    Public
  • Status
    Unbuilt (International Competition)
    Shortlisted in Top 25
  • Team
    Ar. Ishaq K / Ar. Nanditha Adithya Varma / Ar. B N Suneha Jain
image
Next Project

Cherkala Mosque

Next